DE MATTIA FLEX-CRACKING AND CRACK GROWTH TESTER, Fatigue Crack Growth คือการทดสอบการแตกร้าวของวัสดุจากการดัดงอชิ้นงานและศึกษาการเติบโตของรอยแตก เพื่อทำนายอายุการใช้งานของวัสดุ เมื่อวัสดุได้รับความเค้นสม่ำเสมอ ศึกษาการการแตกหัก ความเสียหายของชิ้นงานและทำนายประสิทธิภาพอายุการใช้งานที่เวลาต่างๆ ตามมาตรฐานการทดสอบ JIS-K6260, ASTM D813, BS-903 และ ISO 132
การวัดเพื่อศึกษาความสามารถในการรับแรงเค้นของวัสดุจนชิ้นงานเกิดความเสียหาย (Crack) ดังนี้
1.1 รอยแตกเริ่มต้น คือจำนวนรอบที่ให้แรงเค้นจนชิ้นงานเกิดรอยแตกแรก โดยถ้าวัสดุวัดค่าจานวนรอบได้สูง แสดงว่าชิ้นงานสามารถใช้งานได้นาน มีความคงทนสูง
1.2 การเติบโตของรอยแตก คือวัดขนาดการขยายตัวของรอยแตก ที่เกิดขึ้นจากการบากชิ้นงานทดสอบ
1.3 การศึกษาความทนทาน ของชิ้นงานที่อุณหภูมิต่างๆ โดยเครื่องสามารถเปลี่ยนแปลงอุณหภูมิการทดสอบได้ เพื่อศึกษาโครงสร้างของวัสดุและปัจจัยทางด้านอุณหภูมิต่ออายุการใช้งาน
รูปแสดงขนาดของรอยแตกเมื่อเพิ่มจำนวนรอบการให้โหลด

การทดสอบ ให้แรงคงที่พับชิ้นงานซ้ำไปมา เป็นระยะเวลาหนึ่ง จะทำให้ชิ้นงานบริเวณนั้นเกิดการล้าและแตกหักเกิดรอยบแตก รอยตำหนิ หรือรอยปริเล็กๆ ที่ผิวของยาง ซึ่งเป็นผลมาจากการกระจายตัวของสารคมียางไม่สม่ำเสมอ มีสิ่งแปลกปลอมอยู่ ถือเป็นปัจจัยสำคัญที่ทำให้ยางเกิดการแตกหักเมื่อใช้งาน ในขณะที่ยางถูกพับงอ ความเค้นที่เกิดขึ้นกระจายตัวไม่สม่ำเสมอ มีค่าสูงที่บริเวณพื้นผิว ดังนั้นรอยแตกจึงขยายตัวขึ้น และแพร่ตัวเข้าไปในเนื้อยาง
รูปแสดงเครื่องทดสอบเดอแมทเทียตามมาตรฐาน ASTM D813

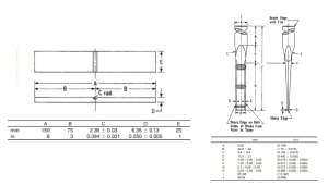
การเตรียมชิ้นงานทดสอบเดอแมทเทียขนาด 25×150 x6.35 มิลลิเมตร และบากชิ้นงาน การทดสอบพับไปมาด้วยความเร็ว 300 รอบต่อนาที โดยรอยแตกจะเกิดจากบริเวณร่องครึ่งวงกลมที่บากไว้
รูปแสดงขนาดของชิ้นงานทดสอบเดอแมทเทียและอุปกรณ์บากตัวอย่าง

ผลการทดสอบเป็นจำนวนรอบของการพับงอที่ทำให้ยางเกิดรอยแตก ในระดับต่างๆ ตามมาตรฐาน ซึ่งมีค่าตั้งแต่ระดับ 0 ไม่มีการแตก ถึงระดับ 10 แตกหมด นอกจากนั้นการทดสอบด้วยวิธีนี้สามารถใช้ทดสอบการขยายตัว ผลที่ได้จากการทดสอบจะวัดขนาดของรอยแตก เป็นค่าของความกว้างของรอยแตกเมื่อทดสอบถึงจำนวนรอบที่กำหนด เช่น 10,000 20,000 40,000 200,000 รอบ หรือบันทึกจำนวนรอบที่ทำให้รอยแตกมีกว้าง 19 มม.ตามวิธีมาตรฐาน ASTM D 813 เป็นต้น



